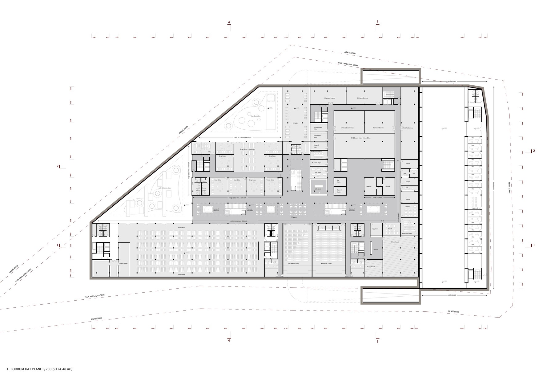
TC. MINISTRY OF FINANCE REVENUE ADMINISTRATION & DATA CENTER

Project Location

Ankara / Turkey

Total Construction Area

120.000 m²

Project Year / Status

2016 / Preliminary Project

Functions

Parking lot (42.000 m²) / Data Center (6.800 m²) / Social Areas (6700 m²) / Office Areas (64.500 m²)

Employer

Revenue Administration