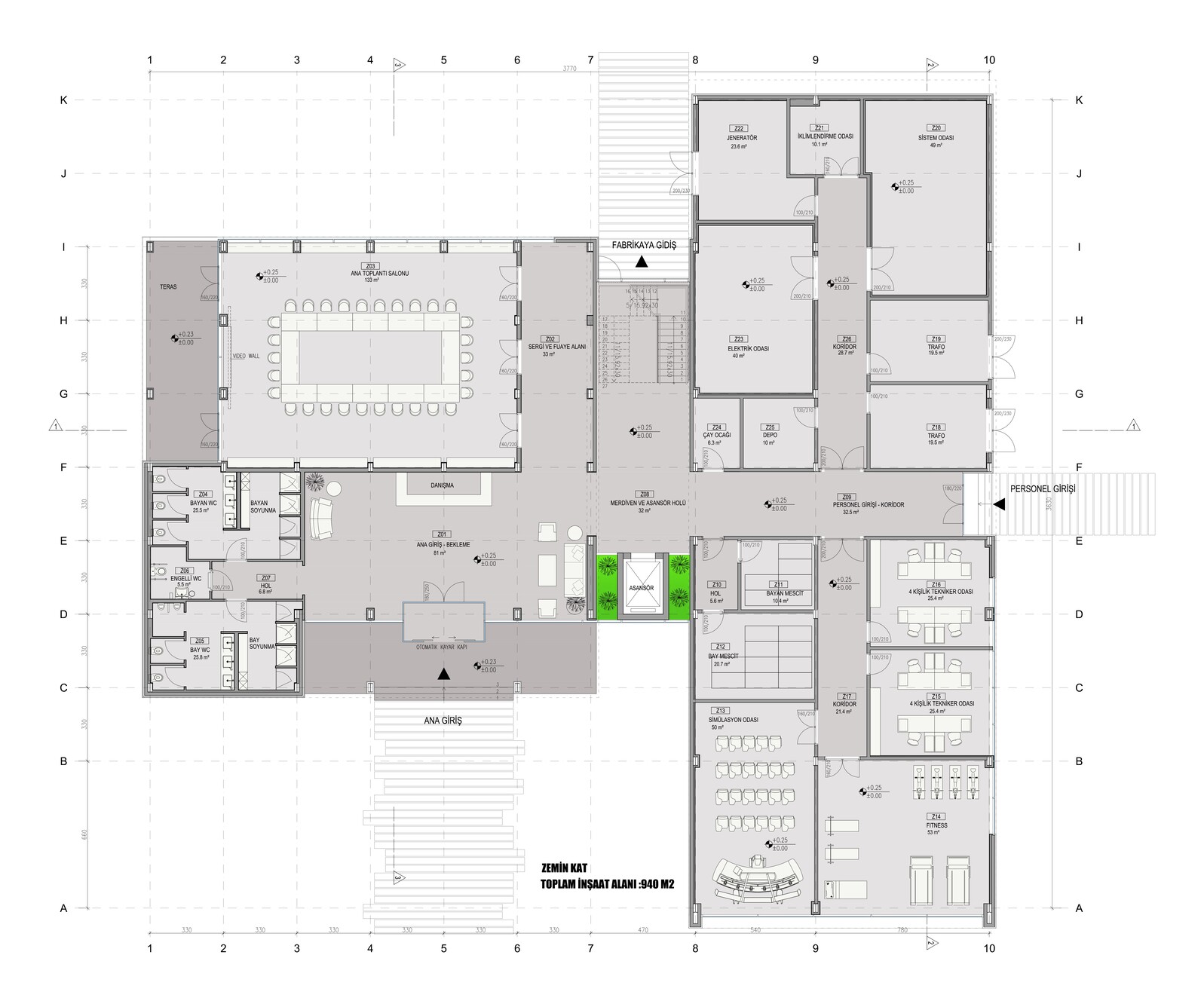
GENERAL DIRECTORATE OF ETİ MINING ENTERPRISES - ENERGY CONTROL AND AUTOMATION BUILDING

Project Location

Balikesir / Turkey

Total Construction Area

1960 m²

Project Year / Status

2014 / Architectural Preliminary Project

Functions

Control and Automation Center

Employer

General Directorate of ETI Mining Operations